![]() |
Resintech Plastics (M) Sdn Bhd (110562-P) |
![]() |
PE Electro Fusion Fitting |
![]() |
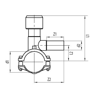
Tapping Saddle (PE Electro Fusion Fitting) |
Spec.DN d1 x d2 |
Z1 | Z2 | L1 | L2 |
---|---|---|---|---|
40 x 20 | 68 | 110 | 120 | 37.5 |
40 x 25 | 68 | 110 | 120 | 37.5 |
40 x 32 | 70 | 112 | 120 | 37.5 |
63 x 20 | 68 | 114 | 170 | 52 |
63 x 25 | 68 | 114 | 170 | 52 |
63 x 32 | 69 | 115 | 170 | 52 |
63 x 40 | 72 | 119 | 170 | 52 |
63 x 50 | 80 | 140 | 198 | 61 |
63 x 63 | 80 | 140 | 198 | 61 |
90 x 20 | 70 | 123 | 186 | 71 |
90 x 25 | 68 | 121 | 186 | 71 |
90 x 32 | 68 | 121 | 186 | 71 |
90 x 40 | 74 | 127 | 186 | 71 |
90 x 50 | 80 | 139 | 215 | 79 |
90 x 63 | 81 | 140 | 215 | 79 |
110 x 20 | 68 | 126 | 204 | 83.5 |
110 x 25 | 68 | 126 | 204 | 83.5 |
110 x 32 | 70 | 128.5 | 204 | 83.5 |
110 x 40 | 74 | 132 | 204 | 83.5 |
110 x 50 | 79 | 143 | 230 | 93 |
110 x 63 | 81 | 145 | 230 | 93 |
125 x 20 | 68 | 128 | 237 | 98 |
125 x 25 | 68 | 128 | 237 | 98 |
125 x 32 | 70 | 130 | 237 | 98 |
125 x 40 | 73 | 133 | 237 | 98 |
125 x 50 | 79 | 148 | 260 | 103 |
125 x 63 | 81 | 150 | 260 | 103 |
140 x 20 | 68 | 134 | 249 | 110 |
140 x 25 | 68 | 134 | 249 | 110 |
140 x 32 | 70 | 136 | 249 | 110 |
140 x 40 | 73 | 139 | 249 | 110 |
140 x 50 | 79 | 154 | 270 | 113 |
140 x 63 | 81 | 156 | 270 | 113 |
160 x 20 | 68 | 134 | 260 | 120 |
160 x 25 | 68 | 134 | 260 | 120 |
160 x 32 | 70 | 136 | 260 | 120 |
160 x 40 | 74 | 140 | 260 | 120 |
160 x 50 | 79 | 155 | 282 | 125 |
160 x 63 | 81 | 157 | 282 | 125 |
All unit measurement are based on (mm) |
Material | : | PE80 |
Pressure | : | 1.25 Mpa (Water) 0.8 Mpa (Gas) |
Material | : | PE100 |
Pressure | : | 1.6 Mpa (Water) 1.0 Mpa (Gas) |
Welding Voltage | : | 40v |
Pin Connection Diameter | : | 4.0mm |