Resintech Plastics (M) Sdn Bhd (110562-P)
FIMAS PE Thermoweld Fitting > Stub End
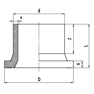
Stub End (PE Thermoweld Fitting)

Spec.DN
d
D H Z L e SDR11 SDR13.6 SDR17 SDR21 SDR26
20 45 7 41 62 2.3
25 58 9 41 64 2.3
32 68 10 44 70 3
40 78 11 49 76 3.6
63 88 14 70 95 5.8
75 120 16 76 105 6.8
90 120 17 80 110 9.2
110 156 18 84 115 10.5
125 158 25 98 130 11.4
140 188 25 102 140 12.8
160 200 25 112 150 14.6
180 212 30 127 160 16.4
200 250 32 115 175 18.2
225 268 32 139 180 20.5
250 315 35 129 195 22.7
280 320 35 155 200 25.5
315 370 35 157 210 28.6
355 420 50 100 175 32.3
400 470 45 100 170  
450 540 45 100 172  
500 585 55 100 170  
560 630 55 100 173  
630 685 55 100 181  
710 800 50 100 180  
800 910 55 170 260  
All unit measurement are based on (mm)
All thickness are based on SDR11.
For other thickness, please refer to this page.
Material : PE80
Pressure : 1.25 Mpa (Water)
0.8 Mpa (Gas)
Connection : Butt Welding
Material : PE100
Pressure : 1.6 Mpa (Water)
1.0 Mpa (Gas)
Connection : Butt Welding